二胎家庭業主被人問得最多的就是:你家一男孩一女孩,只有一間兒童房要怎麼住呢?可不是每個家庭都能做到房子想換就換的,那最後就只剩下一種辦法了,將房間一分為二,不用砌一堵牆,一張床就能搞定!

左右相隔就是在房間的中間位置加個隔斷,兩張兒童房靠牆擺放,上床下櫃,中間則是兩張書桌。

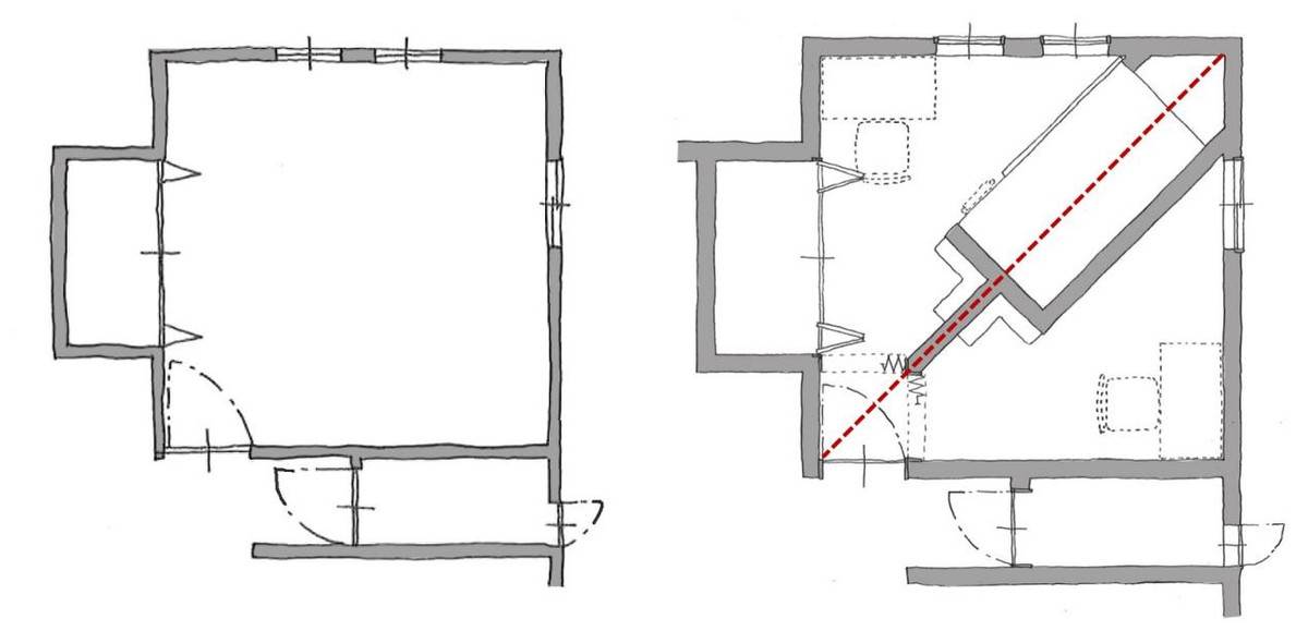
而斜著相隔則是將房間沿著對角線就行隔開,中間利用一張「S」型結構的床來代替隔斷,從左邊看上床下桌,右邊則是下桌上床,《夢想改造家》節目中就出現過這種設計,一張床兼具了兩床兩衣櫃的功能,書桌則是放在兩邊牆壁的角落處。


看完更糾結了,這下到底要怎麼選呢?
左右分隔更適用于大一點的兒童房,而且中間可以選擇一些比較靈活的隔斷,比如入牆式推拉門,折疊門等,白天的時候可以將門打開,實現兩間兒童房二合一,兩個孩子可以一起玩耍,活動的空間也會更寬敞一些,也能一起做作業,方便交流感情,這種隔開方式的兒童房使用起來能具有更多的可能性。

斜著分隔最大的優勢就是更省空間,適合小面積的兒童房,兒童房分隔開日常是沒有辦法隨意進行移動的,每個房間裡的活動空間有限。另外隔開後房間可能會出現很多拐角,想要利用比較難,著實是有些浪費了。


不管是哪種分隔的方式,有一點必須要保證,那就是兩個房間都要有窗戶,一些只有一面牆上有窗戶的房間,那麼在分隔方式的選擇上就存在很多的局限。

其實想要將一間兒童房隔成兩間的方法有很多,也可以增加雙面隔斷櫃,擴容就是這麼簡單,各有各的空間,保證隱私的同時又能解決收納問題。

如果家裡有一男一女兩個寶寶的話,那麼在裝修房子的時候趁早考慮私密性問題,不要以為設計一張高低床就完事了,住不了幾年又得改了,當然了,如果你家房子夠大,兩個孩子一人一間自然是再好不過啦!


最後問一句,只有一間兒童房,上面兩種分隔方式你們更喜歡哪一種呢?
(部分圖片來源于網路)